April 2020
Client: Man, 30 years old, single, mid. manager position, sometimes working from home. Loves sports, commutes daily on a bike, rides skis, plays tennis, exercises. Eats out a lot, but likes to cook and occasionally hosts a group of friends for dinner and board games.
Flat: 43 m2, 1+kk, south oriented, 4th floor, gets a lot of sunshine.
Budget: 12-20k €


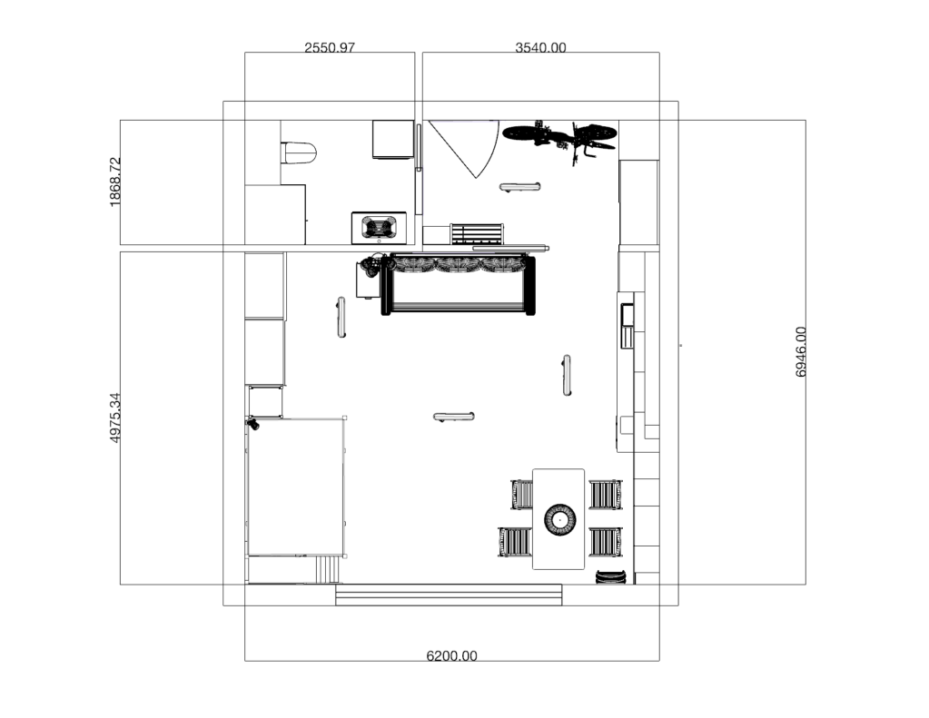
Hall
The entrance area is enlarged for easy manipulation with bicycles which have their place right behind the door on the left side. The bike place is defined by sheets of birch plywood that protect the walls and floor from dirt. Its nice natural texture is exposed in the bit of sunlight getting to the hall from the living room. Also, it links the hall to the living room where wood is used.
The build-in wardrobe serves as a service area and covers the infrastructure for the kitchen. Its mirror door is essential for the outfit check before leaving but also for distribution of the daylight.


Main living area
The main living area is on the boundary of social and private zones, so it is easily reachable from every place in the flat. It is left unoccupied so it can be used for exercise, playing board games on the floor, packing for expeditions or a dining area can expand here when hosting a bigger group of people. Sofa id oriented against the window for a nice view and the possibility for sunbathing. a projection screen can be pulled down over the window for occasions of movie nights.
The door connecting the hall and living room are very big and left mostly open so the space is bigger and more fluid. But it can be separated by a sliding door. It is possible to admire the bikes from the living room thanks to these large doors.

Kitchen and dining area
The kitchen is located along the side of the living room for comfortable cooking with more people at one time. Also, it is close to the dining area and main living area with the sofa so the chef is not separated from the other hanging out visitors. The enlarged door to the hall ensures the chef is not in the way and the fridge is very easy to reach when coming with loads of groceries.
The dining area is close to the kitchen and can be easily expanded to the mid of the space when more visitors come. The standalone Arc lamp dominates the space and ensures that the dining table can be moved freely around the whole room. The open shelves behind the table follow the line of the kitchen working area and optically widen the room.

Private area
The sleeping area is very cosy and private thanks to the elevated bed. It is close to the window for fresh air during the night and it makes nice use of the darkest corner in the room. The ladder is slightly modified for a comfortable approach to the bed so one can nicely sit on the edge of the bed as normal. Deep steps of the ladder double as storage space for sports equipment and the top one serve as a library in reach from the workspace.

Bathroom
The bathroom is designed in a minimalist way with strong domination of white color. Emphasis is laid on the comfort of use, so the heated towel rack is situated in a comfortable reach from a washbasin as well as in reach of an arm from the shower.


Color palette





Lightning selection




Floor plans

